Italiano
134.550 €

TRILOCALE ALL'ASTA

4 o più locali in vendita • Busto Arsizio - Via Gioacchino Rossini, 120
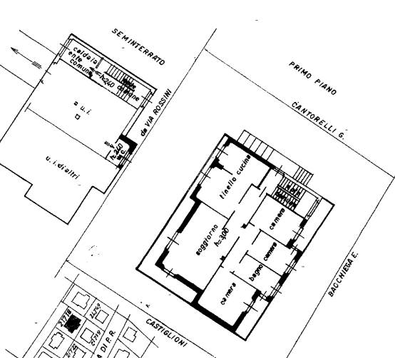
lotto unico: appartamento sito a busto arsizio in via gioacchino rossini, 120, della superficie commerciale di 167 mq, con annesso box doppio. Composto da quattro locali con servizi.
lotto unico: appartamento sito a busto arsizio in via gioacchino rossini, 120, della superficie commerciale di 167 mq, con annesso box doppio. Composto da quattro locali con servizi.
AFFARI ALL'ASTA è uno studio di consulenza che si occupa di aste immobiliari e saldo stralcio, dove il cliente viene seguito in tutto il percorso relativo all' acquisto tramite aste giudiziarie.
L' immobile viene venduto dal tribunale ed il prezzo indicato si riferisce all' offerta minima.
Contattaci per fissare un appuntamento per avere maggiori informazioni.
Per maggiori informazioni:
MILANO, VIA GIUSEPPE TARTINI, 12 (MI)
+39 3392588984
+39 3427176507

Per maggiori informazioni:
MILANO, VIA GIUSEPPE TARTINI, 12 (MI)
+39 3392588984
+39 3427176507
Caratteristiche principali
Codice
SDIC65
Città
Busto Arsizio
Categoria
4 o più locali
Prezzo
134.550 €
Locali
4
Mq
167
Box
1
Piano
Terra
Classe energetica
G
Stato Immobile
Buono
Grado
Medio
Posizione
Periferia
Panorama
Vista Aperta
Orientamento
Nord Ovest Sud Est
Giardino
Cortile
Arredi
Semi Arredato
Tipo Soggiorno
Sala da Pranzo
Tipo Cucina
A Vista
Riscaldamento
Autonomo
Tipo Riscaldam.
Caldaia
Tipo Impianto
Radiatori
Fonte Energetica
Metano
Infissi
Legno
Serramenti
Buono
Persiana
Persiana Legno
Pavim. Giorno
Ceramica
Pavim. Notte
Ceramica
Pavim. Cucina
Ceramica
Pavim. Bagno
Ceramica
Mappa
Via Gioacchino Rossini 120, Busto Arsizio (VA)
Condividi su
Cookie preference