Italiano
313.920 €

QUADRILOCALE ALL'ASTA

4 o più locali in vendita • Milano (Città Studi/ Lambrate/ Udine/ Loreto) - Via Ugo la Malfa, 11
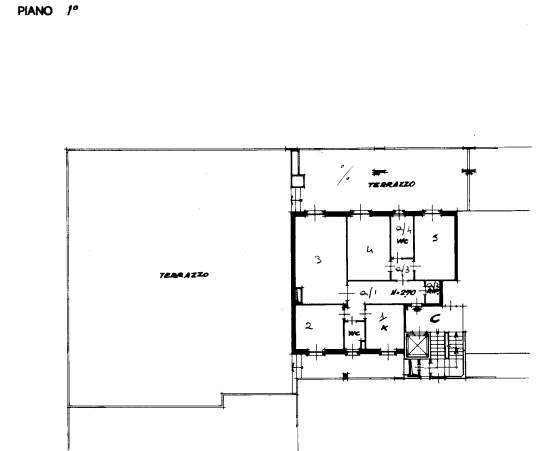
appartamento composto da quattro locali oltre cucina e servizi con ampio terrazzo al piano primo ed annesso vano di cantina pertinenziale al piano sotterraneo, della superficie commerciale di 176 mq
appartamento composto da quattro locali oltre cucina e servizi con ampio terrazzo al piano primo ed annesso vano di cantina pertinenziale al piano sotterraneo, della superficie commerciale di 176 mq
AFFARI ALL'ASTA è uno studio di consulenza che si occupa di aste immobiliari e saldo stralcio, dove il cliente viene seguito in tutto il percorso relativo all' acquisto tramite aste giudiziarie.
L' immobile viene venduto dal tribunale ed il prezzo indicato si riferisce all' offerta minima.
Contattaci per fissare un appuntamento per avere maggiori informazioni.
Per maggiori informazioni:
MILANO, VIA GIUSEPPE TARTINI, 12 (MI)
+39 3392588984
+39 3427176507

Per maggiori informazioni:
MILANO, VIA GIUSEPPE TARTINI, 12 (MI)
+39 3392588984
+39 3427176507

Caratteristiche principali
Codice
SDIC39
Città
Milano (Città Studi/ Lambrate/ Udine/ Loreto)
Categoria
4 o più locali
Prezzo
313.920 €
Locali
4
Mq
176
Piano
3
Classe energetica
G
Stato Immobile
Buono
Grado
Medio
Posizione
Periferia
Panorama
Vista Aperta
Orientamento
Nord Ovest Sud Est
Giardino
Cortile
Arredi
Semi Arredato
Tipo Soggiorno
Sala da Pranzo
Tipo Cucina
A Vista
Riscaldamento
Centralizzato
Tipo Riscaldam.
Caldaia
Tipo Impianto
Radiatori
Fonte Energetica
Metano
Infissi
Legno
Serramenti
Buono
Persiana
Tapparella PVC
Pavim. Giorno
Ceramica
Pavim. Notte
Ceramica
Pavim. Cucina
Ceramica
Pavim. Bagno
Ceramica

Accessori: Ascensore

Mappa
Via Ugo la Malfa 11, Milano (MI)
Condividi su
Cookie preference