Italiano
236.250 €

VILLA ALL'ASTA

4 o più locali in vendita • Noviglio - Via Puccini, 9
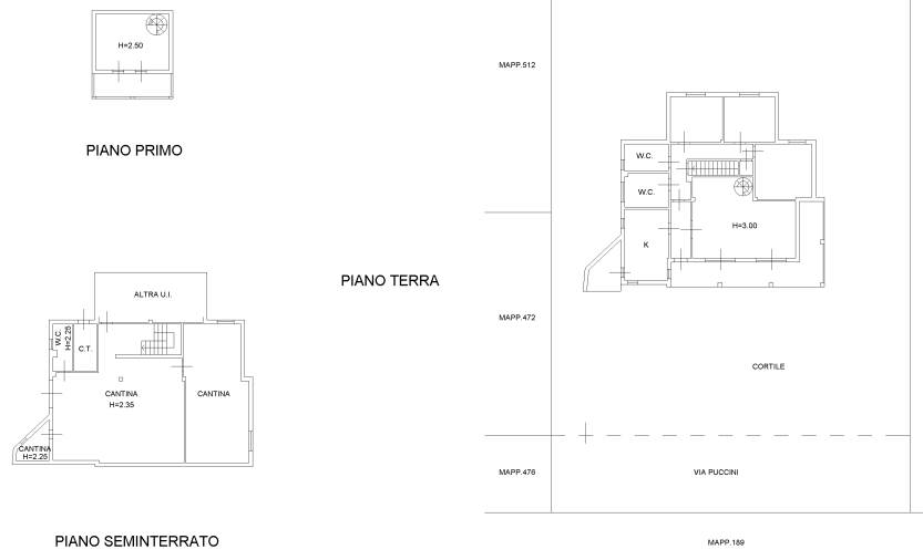
villetta unifamiliare ad uso abitazione, indipendente, libera su tutti i lati, con autorimessa ed area pertinenziale circostante, disposta su tre livelli tra loro collegati da scala interna, della superficie commerciale di 280 mq
villetta unifamiliare ad uso abitazione, indipendente, libera su tutti i lati, con autorimessa ed area pertinenziale circostante, disposta su tre livelli tra loro collegati da scala interna, della superficie commerciale di 280 mq
AFFARI ALL'ASTA è uno studio di consulenza che si occupa di aste immobiliari e saldo stralcio, dove il cliente viene seguito in tutto il percorso relativo all' acquisto tramite aste giudiziarie.
L' immobile viene venduto dal tribunale ed il prezzo indicato si riferisce all' offerta minima.
Contattaci per fissare un appuntamento per avere maggiori informazioni.
Per maggiori informazioni:
MILANO, VIA GIUSEPPE TARTINI, 12 (MI)
+39 3392588984
+39 3427176507

Per maggiori informazioni:
MILANO, VIA GIUSEPPE TARTINI, 12 (MI)
+39 3392588984
+39 3427176507
Caratteristiche principali
Codice
SDIC32
Città
Noviglio
Categoria
4 o più locali
Prezzo
236.250 €
Locali
5
Mq
280
Box
1
Piano
Terra
Classe energetica
G
Stato Immobile
Buono
Grado
Medio
Posizione
Periferia
Panorama
Vista Aperta
Orientamento
Nord Ovest Sud Est
Giardino
Cortile
Arredi
Semi Arredato
Tipo Soggiorno
Sala da Pranzo
Tipo Cucina
A Vista
Riscaldamento
Autonomo
Tipo Riscaldam.
Caldaia
Tipo Impianto
Radiatori
Fonte Energetica
Metano
Infissi
Legno Doppio Vetro
Serramenti
Buono
Persiana
Persiana Legno
Pavim. Giorno
Ceramica
Pavim. Notte
Parquet
Pavim. Cucina
Ceramica
Pavim. Bagno
Ceramica

Accessori: Aria Condizionata, Porta Blindata, Zanzariere

Mappa
Via Puccini 9, Noviglio (MI)
Condividi su
Cookie preference