Italiano
76.500 €

TRILOCALE ALL'ASTA

3 locali in vendita • Pieve Emanuele - Via giuseppe verdi , 13/a
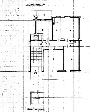
appartamento al primo piano composto da tre locali e servizi con annesso vano solaio al piano sottotetto, della superficie commerciale di 86 mq, dotato di ascensore, portineria e riscaldamento centralizzato
appartamento al primo piano composto da tre locali e servizi con annesso vano solaio al piano sottotetto, della superficie commerciale di 86 mq, dotato di ascensore, portineria e riscaldamento centralizzato
AFFARI ALL'ASTA è uno studio di consulenza che si occupa di aste immobiliari e saldo stralcio, dove il cliente viene seguito in tutto il percorso relativo all' acquisto tramite aste giudiziarie.
L' immobile viene venduto dal tribunale ed il prezzo indicato si riferisce all' offerta minima.
Contattaci per fissare un appuntamento per avere maggiori informazioni.
Per maggiori informazioni:
MILANO, VIA GIUSEPPE TARTINI, 12 (MI)
+39 3392588984
+39 3427176507

Per maggiori informazioni:
MILANO, VIA GIUSEPPE TARTINI, 12 (MI)
+39 3392588984
+39 3427176507
Caratteristiche principali
Codice
SDIC316
Città
Pieve Emanuele
Categoria
3 locali
Prezzo
76.500 €
Locali
3
Mq
86
Piano
1
Classe energetica
G
Stato Immobile
Buono
Grado
Medio
Posizione
Centro
Panorama
Vista Aperta
Orientamento
Nord Ovest Sud Est
Giardino
Cortile
Arredi
Semi Arredato
Tipo Soggiorno
Sala da Pranzo
Tipo Cucina
A Vista
Riscaldamento
Centralizzato
Tipo Riscaldam.
Caldaia
Tipo Impianto
Radiatori
Fonte Energetica
Metano
Infissi
Legno
Serramenti
Buono
Persiana
Tapparella Legno
Pavim. Giorno
Ceramica
Pavim. Notte
Ceramica
Pavim. Cucina
Ceramica
Pavim. Bagno
Ceramica

Accessori: Ascensore, Portineria/Custode

Mappa
Via giuseppe verdi 13/a, Pieve Emanuele (MI)
Condividi su
Cookie preference