Italiano
99.000 €

VILLA A SCHIERA ALL'ASTA

4 o più locali in vendita • Cabiate - Via Giorgio La Pira, 4
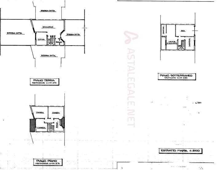
piena proprietà per la quota di 1000/1000 di villetta a schiera ad uso civile abitazione, disposta su tre livelli, piano terra, primo e interrato. Della superficie commerciale di 164 mq
piena proprietà per la quota di 1000/1000 di villetta a schiera ad uso civile abitazione, disposta su tre livelli, piano terra, primo e interrato. Della superficie commerciale di 164 mq
AFFARI ALL'ASTA è uno studio di consulenza che si occupa di aste immobiliari e saldo stralcio, dove il cliente viene seguito in tutto il percorso relativo all' acquisto tramite aste giudiziarie.
L' immobile viene venduto dal tribunale ed il prezzo indicato si riferisce all' offerta minima.
Contattaci per fissare un appuntamento per avere maggiori informazioni.
Per maggiori informazioni:
MILANO, VIA GIUSEPPE TARTINI, 12 (MI)
+39 3392588984
+39 3427176507

Per maggiori informazioni:
MILANO, VIA GIUSEPPE TARTINI, 12 (MI)
+39 3392588984
+39 3427176507
Caratteristiche principali
Codice
SDIC307
Città
Cabiate
Categoria
4 o più locali
Prezzo
99.000 €
Locali
4
Bagni
2
Mq
164
Box
1
Piano
Terra
Classe energetica
G
Stato Immobile
Buono
Grado
Medio
Posizione
Periferia
Panorama
Vista Aperta
Orientamento
Nord Ovest Sud Est
Giardino
Cortile
Arredi
Semi Arredato
Tipo Soggiorno
Sala da Pranzo
Tipo Cucina
A Vista
Riscaldamento
Autonomo
Tipo Riscaldam.
Caldaia
Tipo Impianto
Radiatori
Fonte Energetica
Metano
Infissi
Alluminio Doppio Vetro
Serramenti
Buono
Persiana
Tapparella PVC
Pavim. Giorno
Ceramica
Pavim. Notte
Ceramica
Pavim. Cucina
Ceramica
Pavim. Bagno
Ceramica

Accessori: Lavanderia

Mappa
Via Giorgio La Pira 4, Cabiate (CO)
Condividi su
Cookie preference