Italiano
63.750 €

MONOLOCALE ALL'ASTA

1 locale in vendita • Travacò Siccomario - Via Leonardo Da Vinci, 30
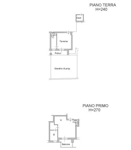
Travacò Siccomario (PV) Via Leonardo Da Vinci 30/II, appartamento disposto su due livelli, composto al piano terra da giardino e taverna e al piano primo da locale con servizi, i due piani sono collegati tra loro da scala interna, della superficie commerciale di 55 mq
Travacò Siccomario (PV) Via Leonardo Da Vinci 30/II, appartamento disposto su due livelli, composto al piano terra da giardino e taverna e al piano primo da locale con servizi, i due piani sono collegati tra loro da scala interna, della superficie commerciale di 55 mq
AFFARI ALL'ASTA è uno studio di consulenza che si occupa di aste immobiliari e saldo stralcio, dove il cliente viene seguito in tutto il percorso relativo all' acquisto tramite aste giudiziarie.
L' immobile viene venduto dal tribunale ed il prezzo indicato si riferisce all' offerta minima.
Contattaci per fissare un appuntamento per avere maggiori informazioni.
Per maggiori informazioni:
MILANO, VIA GIUSEPPE TARTINI, 12 (MI)
+39 3392588984
+39 3427176507

Per maggiori informazioni:
MILANO, VIA GIUSEPPE TARTINI, 12 (MI)
+39 3392588984
+39 3427176507

Caratteristiche principali
Codice
SDIC282
Città
Travacò Siccomario
Categoria
1 locale
Prezzo
63.750 €
Locali
1
Mq
55
Box
1
Posti auto
1
Piano
Terra
Classe energetica
G
Stato Immobile
Buono
Grado
Medio
Posizione
Periferia
Panorama
Vista Aperta
Orientamento
Nord Ovest Sud Est
Giardino
Privato
Arredi
Non Arredato
Tipo Soggiorno
Sala da Pranzo
Tipo Cucina
A Vista
Riscaldamento
Autonomo
Tipo Riscaldam.
Caldaia
Tipo Impianto
Radiatori
Fonte Energetica
Metano
Infissi
Legno Doppio Vetro
Serramenti
Buono
Persiana
Persiana Legno
Pavim. Giorno
Ceramica
Pavim. Notte
Ceramica
Pavim. Cucina
Ceramica
Pavim. Bagno
Ceramica

Accessori: Porta Blindata

Mappa
Via Leonardo Da Vinci 30, Travacò Siccomario (PV)
Condividi su
Cookie preference