Italiano
900.000 €

CAPANNONE INDUSTRIALE ALL'ASTA

Capannone in vendita • Villasanta - Via S. Fiorano, 66
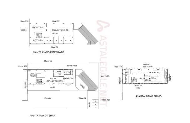
Piena proprietà capannone industriale sito in Villasanta alla Via S. Fiorano 66, della superficie commerciale di mq. 2.393, posto su tre livelli, dotato di aria condizionata, ascensore, antifurto.
Piena proprietà capannone industriale sito in Villasanta alla Via S. Fiorano 66, della superficie commerciale di mq. 2.393, posto su tre livelli, dotato di aria condizionata, ascensore, antifurto.
AFFARI ALL'ASTA è uno studio di consulenza che si occupa di aste immobiliari e saldo stralcio, dove il cliente viene seguito in tutto il percorso relativo all' acquisto tramite aste giudiziarie.
L' immobile viene venduto dal tribunale ed il prezzo indicato si riferisce all' offerta minima.
Contattaci per fissare un appuntamento per avere maggiori informazioni.
Per maggiori informazioni:
MILANO, VIA GIUSEPPE TARTINI, 12 (MI)
+39 3392588984
+39 3427176507

Per maggiori informazioni:
MILANO, VIA GIUSEPPE TARTINI, 12 (MI)
+39 3392588984
+39 3427176507
Caratteristiche principali
Codice
SDIC275
Città
Villasanta
Categoria
Capannone
Prezzo
900.000 €
Locali
10
Mq
2393
Piano
Terra
Classe energetica
G
Stato Immobile
Buono
Grado
Medio
Posizione
Periferia
Panorama
Vista Aperta
Orientamento
Nord Ovest Sud Est
Riscaldamento
Autonomo
Tipo Riscaldam.
Caldaia
Tipo Impianto
Radiatori
Fonte Energetica
Metano
Infissi
Alluminio
Serramenti
Buono
Pavimento
Cemento
Destinazione
Industriale

Accessori: Antifurto, Aria Condizionata, Ascensore

Mappa
Via S. Fiorano 66, Villasanta (MB)
Condividi su
Cookie preference