Italiano
40.128 €

UFFICIO ALL'ASTA

Ufficio in vendita • Saronno - Via Padre Reginaldo Giuliani, 95
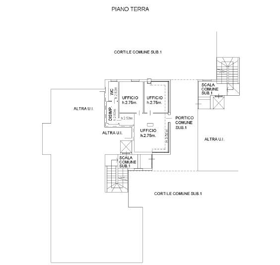
ufficio sito a saronno (va) in via padre reginaldo giuliani, 95/97, con vetrina su strada, posto al piano terra con box auto al piano interrato, composto da tre locali con servizi
ufficio sito a saronno (va) in via padre reginaldo giuliani, 95/97, con vetrina su strada, posto al piano terra con box auto al piano interrato, composto da tre locali con servizi
AFFARI ALL'ASTA è uno studio di consulenza che si occupa di aste immobiliari e saldo stralcio, dove il cliente viene seguito in tutto il percorso relativo all' acquisto tramite aste giudiziarie.
L' immobile viene venduto dal tribunale ed il prezzo indicato si riferisce all' offerta minima.
Contattaci per fissare un appuntamento per avere maggiori informazioni.
Per maggiori informazioni:
MILANO, VIA GIUSEPPE TARTINI, 12 (MI)
+39 3392588984
+39 3427176507

Per maggiori informazioni:
MILANO, VIA GIUSEPPE TARTINI, 12 (MI)
+39 3392588984
+39 3427176507
Caratteristiche principali
Codice
SDIC263
Città
Saronno
Categoria
Ufficio
Prezzo
40.128 €
Locali
3
Mq
62
Box
1
Piano
Terra
Classe energetica
G
Stato Immobile
Buono
Grado
Medio
Posizione
Periferia
Panorama
Vista Aperta
Orientamento
Nord Ovest Sud Est
Arredi
Semi Arredato
Riscaldamento
Autonomo
Tipo Riscaldam.
Caldaia
Tipo Impianto
Radiatori
Fonte Energetica
Metano
Infissi
Alluminio
Serramenti
Buono
Pavimento
Ceramica
Mappa
Via Padre Reginaldo Giuliani 95, Saronno (VA)
Condividi su
Cookie preference