Italiano
84.750 €

TRILOCALE ALL'ASTA

3 locali in vendita • Trezzano sul Naviglio - Via Carlo Salerno, 56
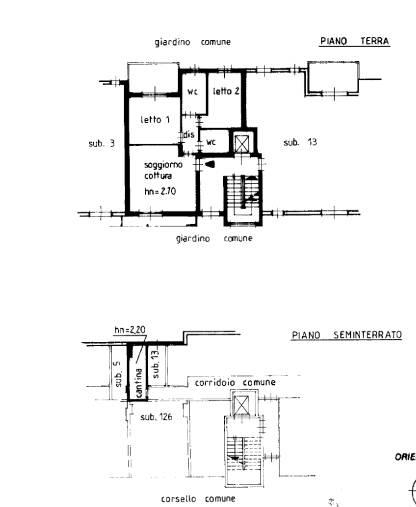
abitazione mq 77 al piano terra di tre locali oltre servizi, terrazzo loggiato e porzione di giardino condominiale ad uso esclusivo, con cantina pertinenziale; autorimessa al piano seminterrato; autorimessa al piano seminterrato.
abitazione mq 77 al piano terra di tre locali oltre servizi, terrazzo loggiato e porzione di giardino condominiale ad uso esclusivo, con cantina pertinenziale; autorimessa al piano seminterrato; autorimessa al piano seminterrato.
AFFARI ALL'ASTA è uno studio di consulenza che si occupa di aste immobiliari e saldo stralcio, dove il cliente viene seguito in tutto il percorso relativo all' acquisto tramite aste giudiziarie.
L' immobile viene venduto dal tribunale ed il prezzo indicato si riferisce all' offerta minima.
Contattaci per fissare un appuntamento per avere maggiori informazioni.
Per maggiori informazioni:
MILANO, VIA GIUSEPPE TARTINI, 12 (MI)
+39 3392588984
+39 3427176507

Per maggiori informazioni:
MILANO, VIA GIUSEPPE TARTINI, 12 (MI)
+39 3392588984
+39 3427176507
Caratteristiche principali
Codice
SDIC24
Città
Trezzano sul Naviglio
Categoria
3 locali
Prezzo
84.750 €
Locali
3
Mq
76
Box
2
Piano
Terra
Classe energetica
G
Stato Immobile
Buono
Grado
Medio
Posizione
Periferia
Panorama
Vista Aperta
Orientamento
Nord Ovest Sud Est
Giardino
Privato
Arredi
Semi Arredato
Tipo Soggiorno
Sala da Pranzo
Tipo Cucina
A Vista
Riscaldamento
Autonomo
Tipo Riscaldam.
Caldaia
Tipo Impianto
Radiatori
Fonte Energetica
Metano
Infissi
Legno Doppio Vetro
Serramenti
Buono
Persiana
Tapparella PVC
Pavim. Giorno
Parquet
Pavim. Notte
Parquet
Pavim. Cucina
Ceramica
Pavim. Bagno
Ceramica

Accessori: Aria Condizionata, Lavanderia, Porta Blindata, Ripostiglio, Zanzariere

Mappa
Via Carlo Salerno 56, Trezzano sul Naviglio (MI)
Condividi su
Cookie preference