Italiano
28.875 €

QUADRILOCALE ALL'ASTA

4 o più locali in vendita • Mortara - Via gioberti, 16
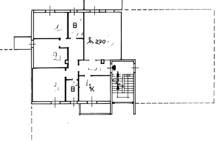
Appartamento al piano secondo e ultimo senza ascensore avente ingresso corridoio, pranzo, tinello e piccolo vano cottura, due balconi, bagno, due camere. Cantina comune indivisa al piano S1, box auto al piano terra in altro corpo di fabbrica nella corte. Della superficie commerciale di 98 mq
Appartamento al piano secondo e ultimo senza ascensore avente ingresso corridoio, pranzo, tinello e piccolo vano cottura, due balconi, bagno, due camere. Cantina comune indivisa al piano S1, box auto al piano terra in altro corpo di fabbrica nella corte. Della superficie commerciale di 98 mq
AFFARI ALL'ASTA è uno studio di consulenza che si occupa di aste immobiliari e saldo stralcio, dove il cliente viene seguito in tutto il percorso relativo all' acquisto tramite aste giudiziarie.
L' immobile viene venduto dal tribunale ed il prezzo indicato si riferisce all' offerta minima.
Contattaci per fissare un appuntamento per avere maggiori informazioni.
Per maggiori informazioni:
MILANO, VIA GIUSEPPE TARTINI, 12 (MI)
+39 3392588984
+39 3427176507

Per maggiori informazioni:
MILANO, VIA GIUSEPPE TARTINI, 12 (MI)
+39 3392588984
+39 3427176507


Caratteristiche principali
Codice
SDIC235
Città
Mortara
Categoria
4 o più locali
Prezzo
28.875 €
Locali
4
Bagni
1
Mq
98
Piano
2
Classe energetica
G
Stato Immobile
Buono
Grado
Medio
Posizione
Centro
Panorama
Vista Aperta
Orientamento
Nord Ovest Sud Est
Giardino
Cortile
Arredi
Semi Arredato
Tipo Soggiorno
Sala da Pranzo
Tipo Cucina
A Vista
Riscaldamento
Autonomo
Tipo Riscaldam.
Caldaia
Tipo Impianto
Radiatori
Fonte Energetica
Metano
Infissi
Legno
Serramenti
Buono
Persiana
Tapparella PVC
Pavim. Giorno
Ceramica
Pavim. Notte
Ceramica
Pavim. Cucina
Ceramica
Pavim. Bagno
Ceramica
Mappa
Via gioberti 16, Mortara (PV)
Condividi su
Cookie preference