Italiano
71.250 €

TRILOCALE ALL'ASTA

3 locali in vendita • Cassano d'Adda - Via Giuseppe Verdi, 2
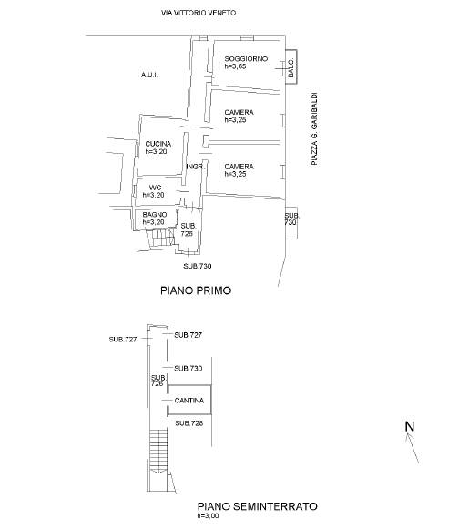
unità immobiliare al piano primo composta da tre locali, bagno, corridoio, balcone e bagno cieco (quest’ultimo confinante ma non comunicante ed avente accesso dal pianerottolo comune), con annesso vano cantina al piano sotterraneo.
unità immobiliare al piano primo composta da tre locali, bagno, corridoio, balcone e bagno cieco (quest’ultimo confinante ma non comunicante ed avente accesso dal pianerottolo comune), con annesso vano cantina al piano sotterraneo.
AFFARI ALL'ASTA è uno studio di consulenza che si occupa di aste immobiliari e saldo stralcio, dove il cliente viene seguito in tutto il percorso relativo all' acquisto tramite aste giudiziarie.
L' immobile viene venduto dal tribunale ed il prezzo indicato si riferisce all' offerta minima.
Contattaci per fissare un appuntamento per avere maggiori informazioni.
Per maggiori informazioni:
MILANO, VIA GIUSEPPE TARTINI, 12 (MI)
+39 3392588984
+39 3427176507

Per maggiori informazioni:
MILANO, VIA GIUSEPPE TARTINI, 12 (MI)
+39 3392588984
+39 3427176507


Caratteristiche principali
Codice
SDIC211
Città
Cassano d'Adda
Categoria
3 locali
Prezzo
71.250 €
Locali
3
Bagni
1
Mq
126
Piano
1
Classe energetica
G
Stato Immobile
Buono
Grado
Medio
Posizione
Periferia
Panorama
Vista Aperta
Orientamento
Nord Ovest Sud Est
Giardino
Cortile
Arredi
Semi Arredato
Tipo Soggiorno
Sala da Pranzo
Tipo Cucina
A Vista
Riscaldamento
Autonomo
Infissi
Legno
Serramenti
Buono
Persiana
Persiana Legno
Pavim. Giorno
Ceramica
Pavim. Notte
Ceramica
Pavim. Cucina
Ceramica
Pavim. Bagno
Ceramica
Mappa
Via Giuseppe Verdi 2, Cassano d'Adda (MI)
Condividi su
Cookie preference