Italiano
36.666 €

TRILOCALE ALL'ASTA

3 locali in vendita • Verdellino - Viale degli Oleandri, 4A
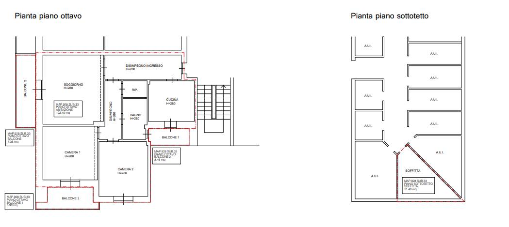
piena proprietà di appartamento posto al piano ottavo composto da soggiorno, cucina, due camere matrimoniali, un bagno, un ripostiglio, due disimpegni e tre terrazzi oltre a una soffitta esclusiva al piano nono.
piena proprietà di appartamento posto al piano ottavo composto da soggiorno, cucina, due camere matrimoniali, un bagno, un ripostiglio, due disimpegni e tre terrazzi oltre a una soffitta esclusiva al piano nono.
AFFARI ALL'ASTA è uno studio di consulenza che si occupa di aste immobiliari e saldo stralcio, dove il cliente viene seguito in tutto il percorso relativo all' acquisto tramite aste giudiziarie.
L' immobile viene venduto dal tribunale ed il prezzo indicato si riferisce all' offerta minima.
Contattaci per fissare un appuntamento per avere maggiori informazioni.
Per maggiori informazioni:
MILANO, VIA GIUSEPPE TARTINI, 12 (MI)
+39 3392588984
+39 3427176507

Per maggiori informazioni:
MILANO, VIA GIUSEPPE TARTINI, 12 (MI)
+39 3392588984
+39 3427176507
Caratteristiche principali
Codice
SDIC207
Città
Verdellino
Categoria
3 locali
Prezzo
36.666 €
Locali
3
Bagni
1
Mq
109
Piano
8
Classe energetica
G
Stato Immobile
Buono
Grado
Medio
Posizione
Periferia
Panorama
Vista Aperta
Orientamento
Nord Ovest Sud Est
Giardino
Cortile
Arredi
Semi Arredato
Tipo Soggiorno
Sala da Pranzo
Tipo Cucina
A Vista
Riscaldamento
Autonomo
Tipo Riscaldam.
Caldaia
Tipo Impianto
Radiatori
Fonte Energetica
Metano
Infissi
Metallo
Serramenti
Buono
Persiana
Tapparella PVC
Pavim. Giorno
Ceramica
Pavim. Notte
Ceramica
Pavim. Cucina
Ceramica
Pavim. Bagno
Ceramica

Accessori: Aria Condizionata, Ascensore, Porta Blindata, Ripostiglio

Mappa
Viale degli Oleandri 4A, Verdellino (BG)
Condividi su
Cookie preference