Italiano
55.991 €

QUADRILOCALE ALL'ASTA

4 o più locali in vendita • Verdellino - P.zza Affari , 36
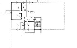
appartamento ad uso abitazione posto all’ottavo e ultimo piano con triplo affaccio composto da zona giorno con cucina abitabile, disimpegno, e la zona notte con due bagni e tre camere. sui tre lati dell’appartamento vi è un terrazzo che costituisce tetto per gli appartamenti sottostanti, protetto dallo sporto di gronda della copertura. la vista è completamente libera.
AFFARI ALL'ASTA è uno studio di consulenza che si occupa di aste immobiliari e saldo stralcio, dove il cliente viene seguito in tutto il percorso relativo all' acquisto tramite aste giudiziarie.
L' immobile viene venduto dal tribunale ed il prezzo indicato si riferisce all' offerta minima.
Contattaci per fissare un appuntamento per avere maggiori informazioni.
Per maggiori informazioni:
MILANO, VIA GIUSEPPE TARTINI, 12 (MI)
+39 3392588984
+39 3427176507

Per maggiori informazioni:
MILANO, VIA GIUSEPPE TARTINI, 12 (MI)
+39 3392588984
+39 3427176507


Caratteristiche principali
Codice
SDIC199
Città
Verdellino
Categoria
4 o più locali
Prezzo
55.991 €
Locali
4
Mq
157
Piano
8
Classe energetica
G
Stato Immobile
Buono
Grado
Medio
Posizione
Periferia
Panorama
Vista Aperta
Orientamento
Nord Ovest Sud Est
Giardino
Cortile
Arredi
Semi Arredato
Tipo Soggiorno
Sala da Pranzo
Tipo Cucina
A Vista
Riscaldamento
Autonomo
Tipo Riscaldam.
Caldaia
Tipo Impianto
Radiatori
Fonte Energetica
Metano
Infissi
Legno
Serramenti
Buono
Persiana
Tapparella PVC
Pavim. Giorno
Ceramica
Pavim. Notte
Ceramica
Pavim. Cucina
Ceramica
Pavim. Bagno
Ceramica

Accessori: Ascensore

Mappa
P.zza Affari 36, Verdellino (BG)
Condividi su
Cookie preference