Italiano
37.500 €

BILOCALE ALL'ASTA

2 locali in vendita • Cavaria con Premezzo - Via Crocetta , 184
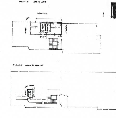
appartamento posto al piano 2 di 6 (di cui 5 piani fuori terra ed uno interrato) di un immobile costruito nel 1963 e ristrutturato nel 2010, per quota 1/1 del diritto di proprietà. Composto da due locali con servizi e cantina
appartamento posto al piano 2 di 6 (di cui 5 piani fuori terra ed uno interrato) di un immobile costruito nel 1963 e ristrutturato nel 2010, per quota 1/1 del diritto di proprietà. Composto da due locali con servizi e cantina
AFFARI ALL'ASTA è uno studio di consulenza che si occupa di aste immobiliari e saldo stralcio, dove il cliente viene seguito in tutto il percorso relativo all' acquisto tramite aste giudiziarie.
L' immobile viene venduto dal tribunale ed il prezzo indicato si riferisce all' offerta minima.
Contattaci per fissare un appuntamento per avere maggiori informazioni.
Per maggiori informazioni:
MILANO, VIA GIUSEPPE TARTINI, 12 (MI)
+39 3392588984
+39 3427176507

Per maggiori informazioni:
MILANO, VIA GIUSEPPE TARTINI, 12 (MI)
+39 3392588984
+39 3427176507


Caratteristiche principali
Codice
SDIC193
Città
Cavaria con Premezzo
Categoria
2 locali
Prezzo
37.500 €
Locali
2
Mq
53
Piano
2
Classe energetica
G
Stato Immobile
Buono
Grado
Medio
Posizione
Periferia
Panorama
Vista Aperta
Orientamento
Nord Ovest Sud Est
Giardino
Cortile
Arredi
Semi Arredato
Tipo Soggiorno
Sala da Pranzo
Tipo Cucina
A Vista
Riscaldamento
Autonomo
Tipo Riscaldam.
Caldaia
Tipo Impianto
Radiatori
Fonte Energetica
Metano
Infissi
Legno
Serramenti
Buono
Persiana
Tapparella PVC
Pavim. Giorno
Ceramica
Pavim. Notte
Ceramica
Pavim. Cucina
Ceramica
Pavim. Bagno
Ceramica

Accessori: Ascensore, Porta Blindata

Mappa
Via Crocetta 184, Cavaria con Premezzo (VA)
Condividi su
Cookie preference