Italiano
2.310.000 €

CAPANNONE INDUSTRIALE ALL'ASTA

Capannone in vendita • Giussano - Via dellIndustria, 2
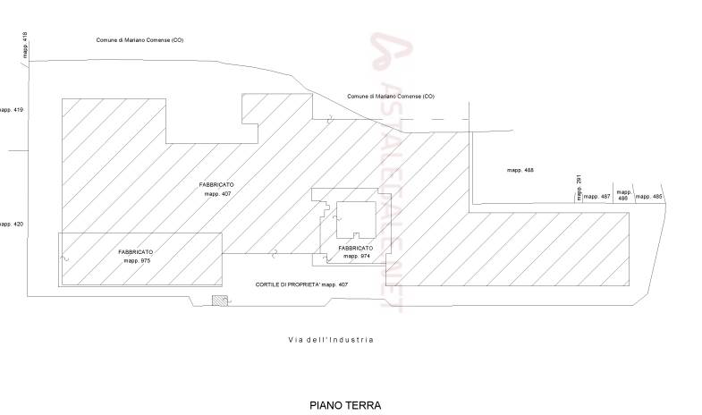
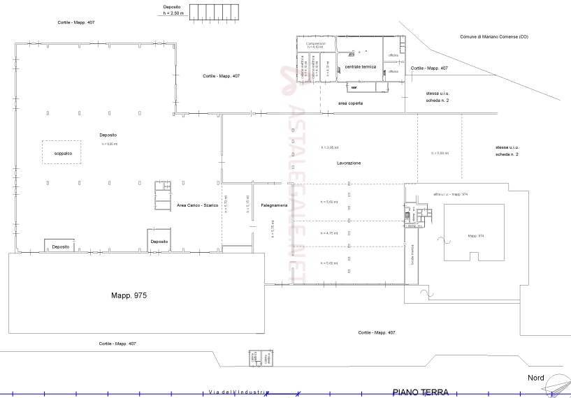
giussano loc birone via dell'industria 2 - lotto unico - capannone industriale e terreno, della superficie commerciale di 17390 mq, disposto su un unico livello (piano terra)
giussano loc birone via dell'industria 2 - lotto unico - capannone industriale e terreno, della superficie commerciale di 17390 mq, disposto su un unico livello (piano terra)
AFFARI ALL'ASTA è uno studio di consulenza che si occupa di aste immobiliari e saldo stralcio, dove il cliente viene seguito in tutto il percorso relativo all' acquisto tramite aste giudiziarie.
L' immobile viene venduto dal tribunale ed il prezzo indicato si riferisce all' offerta minima.
Contattaci per fissare un appuntamento per avere maggiori informazioni.
Per maggiori informazioni:
MILANO, VIA GIUSEPPE TARTINI, 12 (MI)
+39 3392588984
+39 3427176507

Per maggiori informazioni:
MILANO, VIA GIUSEPPE TARTINI, 12 (MI)
+39 3392588984
+39 3427176507


Caratteristiche principali
Codice
SDIC187
Città
Giussano
Categoria
Capannone
Prezzo
2.310.000 €
Locali
8
Mq
17390
Piano
Terra
Classe energetica
G
Stato Immobile
Buono
Grado
Medio
Posizione
Periferia
Panorama
Vista Aperta
Orientamento
Nord Ovest Sud Est
Riscaldamento
Autonomo
Infissi
Metallo
Serramenti
Buono
Pavimento
Cemento
Destinazione
Industriale
Mappa
Via dellIndustria 2, Giussano (MB)
Condividi su
Cookie preference