Italiano
750.000 €

CAPANNONE INSDUSTRIALE ALL'ASTA

Capannone in vendita • San Giuliano Milanese - Via Sardegna, 3
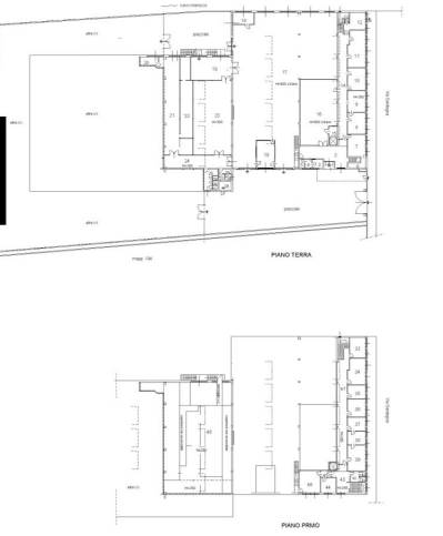
capannone industriale con uffici, frazionabile a san giuliano milanese (mi), via sardegna 3, della superficie commerciale di 2800 mq, disposto su due livelli
capannone industriale con uffici, frazionabile a san giuliano milanese (mi), via sardegna 3, della superficie commerciale di 2800 mq, disposto su due livelli
AFFARI ALL'ASTA è uno studio di consulenza che si occupa di aste immobiliari e saldo stralcio, dove il cliente viene seguito in tutto il percorso relativo all' acquisto tramite aste giudiziarie.
L' immobile viene venduto dal tribunale ed il prezzo indicato si riferisce all' offerta minima.
Contattaci per fissare un appuntamento per avere maggiori informazioni.
Per maggiori informazioni:
MILANO, VIA GIUSEPPE TARTINI, 12 (MI)
+39 3392588984
+39 3427176507

Per maggiori informazioni:
MILANO, VIA GIUSEPPE TARTINI, 12 (MI)
+39 3392588984
+39 3427176507


Caratteristiche principali
Codice
SDIC185
Città
San Giuliano Milanese
Categoria
Capannone
Prezzo
750.000 €
Locali
10
Mq
2800
Piano
Terra
Classe energetica
G
Stato Immobile
Buono
Grado
Medio
Posizione
Periferia
Panorama
Vista Aperta
Orientamento
Nord Ovest Sud Est
Riscaldamento
Autonomo
Tipo Riscaldam.
Caldaia
Tipo Impianto
Radiatori
Fonte Energetica
Metano
Infissi
Alluminio
Serramenti
Buono
Pavimento
Ceramica
Destinazione
Industriale
Mappa
Via Sardegna 3, San Giuliano Milanese (MI)
Condividi su
Cookie preference