Italiano
1.139.000 €

CAPANNONE INDUSTRIALE ALL'ASTA

Capannone in vendita • Baranzate - Via Monte Bisbino , 29
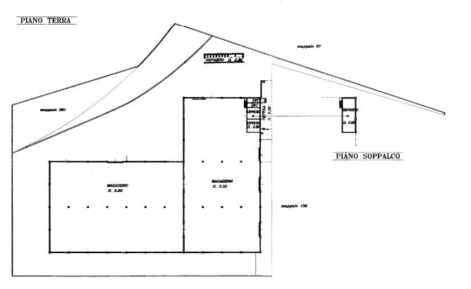
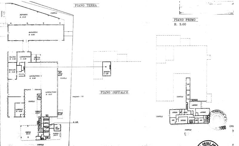
complesso industriale a baranzate (mi), della superficie commerciale di 11465 mq, annesso troviamo appartamento per il custode composto da tre locali con doppi servizi
complesso industriale a baranzate (mi), della superficie commerciale di 11465 mq, annesso troviamo appartamento per il custode composto da tre locali con doppi servizi
AFFARI ALL'ASTA è uno studio di consulenza che si occupa di aste immobiliari e saldo stralcio, dove il cliente viene seguito in tutto il percorso relativo all' acquisto tramite aste giudiziarie.
L' immobile viene venduto dal tribunale ed il prezzo indicato si riferisce all' offerta minima.
Contattaci per fissare un appuntamento per avere maggiori informazioni.
Per maggiori informazioni:
MILANO, VIA GIUSEPPE TARTINI, 12 (MI)
+39 3392588984
+39 3427176507

Per maggiori informazioni:
MILANO, VIA GIUSEPPE TARTINI, 12 (MI)
+39 3392588984
+39 3427176507


Caratteristiche principali
Codice
SDIC184
Città
Baranzate
Categoria
Capannone
Prezzo
1.139.000 €
Locali
9
Mq
11465
Piano
Terra
Classe energetica
G
Stato Immobile
Buono
Grado
Medio
Posizione
Periferia
Panorama
Vista Aperta
Orientamento
Nord Ovest Sud Est
Riscaldamento
Autonomo
Tipo Riscaldam.
Caldaia
Tipo Impianto
Radiatori
Fonte Energetica
Metano
Infissi
Alluminio
Serramenti
Buono
Pavimento
Cemento
Destinazione
Industriale
Mappa
Via Monte Bisbino 29, Baranzate (MI)
Condividi su
Cookie preference