Italiano
279.000 €

CAPANNONE INDUSTRIALE ALL'ASTA

Capannone in vendita • Parabiago - Via gian battista vico, 25/27
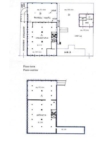
compendio industriale di sei piani fuori terra oltre un piano interrato composto da un edificio industriale ed un appartamento, della superficie commerciale di 3965 mq
compendio industriale di sei piani fuori terra oltre un piano interrato composto da un edificio industriale ed un appartamento, della superficie commerciale di 3965 mq
AFFARI ALL'ASTA è uno studio di consulenza che si occupa di aste immobiliari e saldo stralcio, dove il cliente viene seguito in tutto il percorso relativo all' acquisto tramite aste giudiziarie.
L' immobile viene venduto dal tribunale ed il prezzo indicato si riferisce all' offerta minima.
Contattaci per fissare un appuntamento per avere maggiori informazioni.
Per maggiori informazioni:
MILANO, VIA GIUSEPPE TARTINI, 12 (MI)
+39 3392588984
+39 3427176507

Per maggiori informazioni:
MILANO, VIA GIUSEPPE TARTINI, 12 (MI)
+39 3392588984
+39 3427176507


Caratteristiche principali
Codice
SDIC183
Città
Parabiago
Categoria
Capannone
Prezzo
279.000 €
Locali
8
Mq
3965
Piano
Terra
Classe energetica
G
Stato Immobile
Buono
Grado
Medio
Posizione
Periferia
Panorama
Vista Aperta
Orientamento
Nord Ovest Sud Est
Riscaldamento
Autonomo
Tipo Riscaldam.
Caldaia
Tipo Impianto
Radiatori
Fonte Energetica
Metano
Infissi
Metallo
Serramenti
Buono
Pavimento
Cemento
Destinazione
Industriale
Mappa
Via gian battista vico 25/27, Parabiago (MI)
Condividi su
Cookie preference