Italiano
10.928 €

UFFICIO ALL'ASTA

Ufficio in vendita • Stradella - Piazzale Trieste , 1
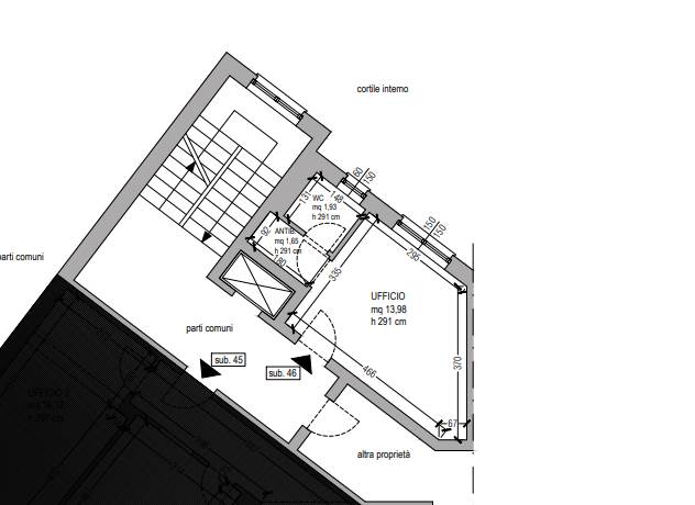
locale ad uso ufficio sito al quarto piano del condominio denominato “condominio rondò” con ascensore, composto da unico locale, un bagno e un antibagno. piena proprietà, della superficie commerciale di 23 mq
locale ad uso ufficio sito al quarto piano del condominio denominato “condominio rondò” con ascensore, composto da unico locale, un bagno e un antibagno. piena proprietà, della superficie commerciale di 23 mq
AFFARI ALL'ASTA è uno studio di consulenza che si occupa di aste immobiliari e saldo stralcio, dove il cliente viene seguito in tutto il percorso relativo all' acquisto tramite aste giudiziarie.
L' immobile viene venduto dal tribunale ed il prezzo indicato si riferisce all' offerta minima.
Contattaci per fissare un appuntamento per avere maggiori informazioni.
Per maggiori informazioni:
MILANO, VIA GIUSEPPE TARTINI, 12 (MI)
+39 3392588984
+39 3427176507

Per maggiori informazioni:
MILANO, VIA GIUSEPPE TARTINI, 12 (MI)
+39 3392588984
+39 3427176507


Caratteristiche principali
Codice
SDIC172
Città
Stradella
Categoria
Ufficio
Prezzo
10.928 €
Locali
1
Bagni
1
Mq
23
Piano
4
Classe energetica
G
Stato Immobile
Buono
Grado
Medio
Posizione
Centro
Panorama
Vista Aperta
Orientamento
Nord Ovest Sud Est
Arredi
Non Arredato
Riscaldamento
Centralizzato
Tipo Riscaldam.
Caldaia
Tipo Impianto
Radiatori
Fonte Energetica
Metano
Infissi
Legno
Serramenti
Buono
Persiana
Tapparella PVC
Pavim. Bagno
Ceramica
Pavimento
Ceramica

Accessori: Ascensore, Porta Blindata

Mappa
Piazzale Trieste 1, Stradella (PV)
Condividi su
Cookie preference