Italiano
435.750 €

UFFICIO ALL'ASTA

Ufficio in vendita • Vimercate - Via Torri Bianche, 1
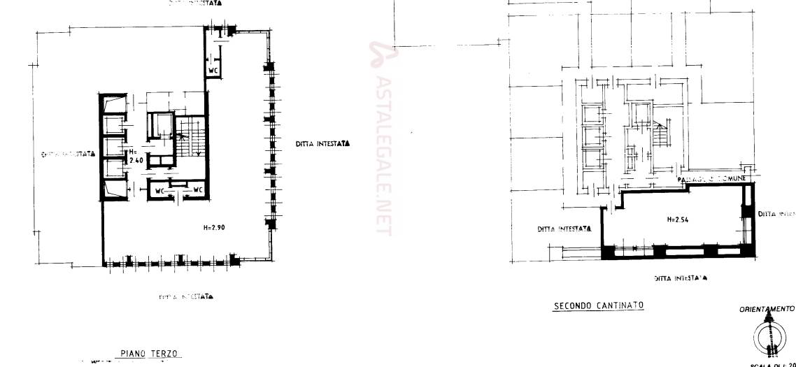
ufficio della superficie commerciale di mq. 215, posto al terzo piano, suddiviso in vani con l'installazione di pareti mobili in legno e vetro, con tre servizi igienici e disimpegni, cantina posta al secondo piano interrato.
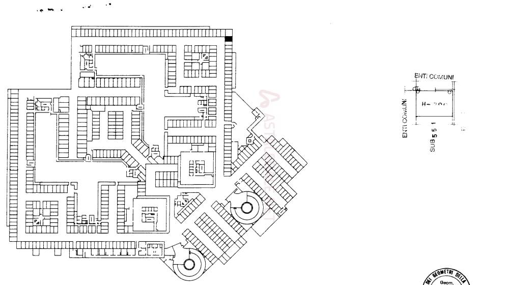
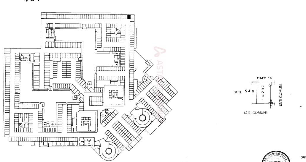
posto auto coperto mq.12,00, secondo piano interrato.
posto auto coperto mq.18,00, secondo piano interrato.
posto auto coperto mq.18,00, secondo piano interrato.
AFFARI ALL'ASTA è uno studio di consulenza che si occupa di aste immobiliari e saldo stralcio, dove il cliente viene seguito in tutto il percorso relativo all' acquisto tramite aste giudiziarie.
L' immobile viene venduto dal tribunale ed il prezzo indicato si riferisce all' offerta minima.
Contattaci per fissare un appuntamento per avere maggiori informazioni.
Per maggiori informazioni:
MILANO, VIA GIUSEPPE TARTINI, 12 (MI)
+39 3392588984
+39 3427176507

Per maggiori informazioni:
MILANO, VIA GIUSEPPE TARTINI, 12 (MI)
+39 3392588984
+39 3427176507


Caratteristiche principali
Codice
SDIC169
Città
Vimercate
Categoria
Ufficio
Prezzo
435.750 €
Locali
5
Bagni
2
Mq
215
Posti auto
3
Piano
3
Classe energetica
G
Stato Immobile
Buono
Grado
Medio
Posizione
Centro
Panorama
Vista Aperta
Orientamento
Nord Ovest Sud Est
Arredi
Semi Arredato
Riscaldamento
Centralizzato
Tipo Riscaldam.
Caldaia
Tipo Impianto
Radiatori
Fonte Energetica
Metano
Infissi
Alluminio Doppio Vetro
Serramenti
Buono
Pavimento
Ceramica

Accessori: Antifurto, Ascensore

Mappa
Via Torri Bianche 1, Vimercate (MB)
Condividi su
Cookie preference