Italiano
190.500 €

TRILOCALE ALL'ASTA

3 locali in vendita • Milano (Chiesa Rossa/ Cermenate/ Ripamonti) - VIA SAN PAOLINO , 35
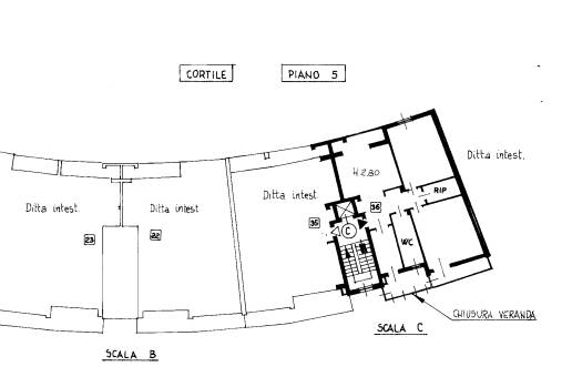
appartamento posto al piano quinto composto da tre locali oltre servizi e veranda, della superficie commerciale di 99 mq, dotato di ascensore e riscaldamento centralizzato.
appartamento posto al piano quinto composto da tre locali oltre servizi e veranda, della superficie commerciale di 99 mq, dotato di ascensore e riscaldamento centralizzato.
AFFARI ALL'ASTA è uno studio di consulenza che si occupa di aste immobiliari e saldo stralcio, dove il cliente viene seguito in tutto il percorso relativo all' acquisto tramite aste giudiziarie.
L' immobile viene venduto dal tribunale ed il prezzo indicato si riferisce all' offerta minima.
Contattaci per fissare un appuntamento per avere maggiori informazioni.
Per maggiori informazioni:
MILANO, VIA GIUSEPPE TARTINI, 12 (MI)
+39 3392588984
+39 3427176507

Per maggiori informazioni:
MILANO, VIA GIUSEPPE TARTINI, 12 (MI)
+39 3392588984
+39 3427176507
Caratteristiche principali
Codice
SDIC14
Città
Milano (Chiesa Rossa/ Cermenate/ Ripamonti)
Categoria
3 locali
Prezzo
190.500 €
Locali
3
Mq
99
Piano
5
Classe energetica
G
Stato Immobile
Buono
Grado
Medio
Posizione
Periferia
Panorama
Vista Aperta
Orientamento
Nord Ovest Sud Est
Giardino
Cortile
Arredi
Semi Arredato
Tipo Soggiorno
Sala da Pranzo
Tipo Cucina
A Vista
Riscaldamento
Centralizzato
Tipo Riscaldam.
Caldaia
Tipo Impianto
Radiatori
Fonte Energetica
Metano
Infissi
Legno
Serramenti
Buono
Persiana
Tapparella PVC
Pavim. Giorno
Graniglia
Pavim. Notte
Graniglia
Pavim. Cucina
Graniglia
Pavim. Bagno
Ceramica

Accessori: Ascensore, Porta Blindata, Ripostiglio

Mappa
VIA SAN PAOLINO 35, Milano (MI)
Condividi su
Cookie preference