Italiano
258.750 €

BILOCALE ALL'ASTA

2 locali in vendita • Locate di Triulzi - Piazza della Vittoria, 7
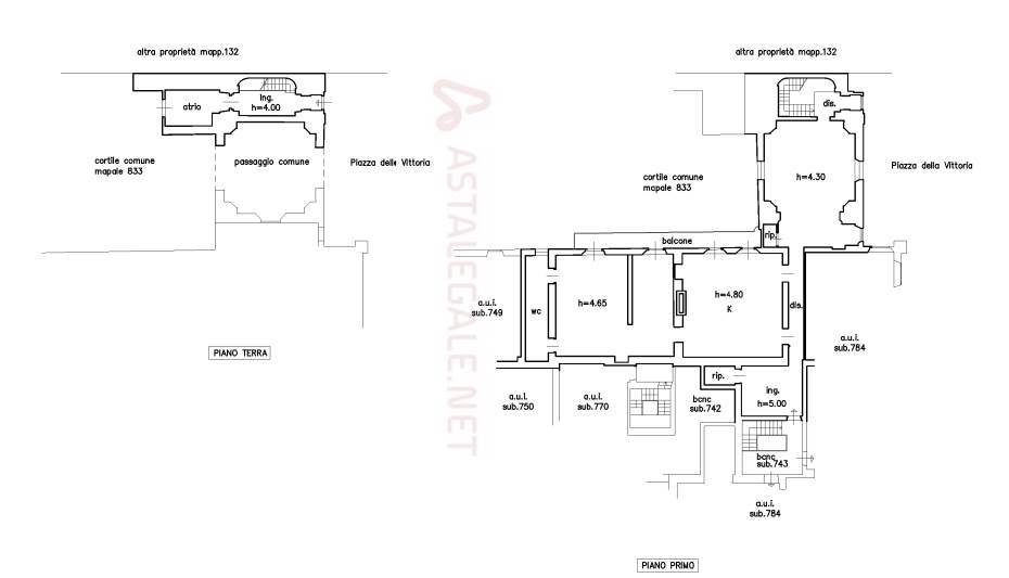
Piena proprietà, appartamento allo stato rustico, posto al piano primo, della superficie commerciale di 260 mq, annessi all'appartamento troviamo due autorimesse
Piena proprietà, appartamento allo stato rustico, posto al piano primo, della superficie commerciale di 260 mq, annessi all'appartamento troviamo due autorimesse
AFFARI ALL'ASTA è uno studio di consulenza che si occupa di aste immobiliari e saldo stralcio, dove il cliente viene seguito in tutto il percorso relativo all' acquisto tramite aste giudiziarie.
L' immobile viene venduto dal tribunale ed il prezzo indicato si riferisce all' offerta minima.
Contattaci per fissare un appuntamento per avere maggiori informazioni.
Per maggiori informazioni:
MILANO, VIA GIUSEPPE TARTINI, 12 (MI)
+39 3392588984
+39 3427176507

Per maggiori informazioni:
MILANO, VIA GIUSEPPE TARTINI, 12 (MI)
+39 3392588984
+39 3427176507
Caratteristiche principali
Codice
SDIC129
Città
Locate di Triulzi
Categoria
2 locali
Prezzo
258.750 €
Locali
2
Mq
260
Box
2
Piano
1
Classe energetica
G
Stato Immobile
Rustico
Grado
Medio
Posizione
Centro
Panorama
Vista Aperta
Orientamento
Nord Ovest Sud Est
Giardino
Cortile
Arredi
Non Arredato
Tipo Soggiorno
Sala da Pranzo
Tipo Cucina
A Vista
Riscaldamento
Autonomo
Persiana
Persiana Legno
Pavim. Giorno
Cemento
Pavim. Notte
Cemento
Pavim. Cucina
Cemento
Pavim. Bagno
Cemento

Accessori: Porta Blindata, Ripostiglio

Mappa
Piazza della Vittoria 7, Locate di Triulzi (MI)
Condividi su
Cookie preference