Italiano
64.500 €

BILOCALE ALL'ASTA

2 locali in vendita • Senago - Via Enrico Fermi, 17
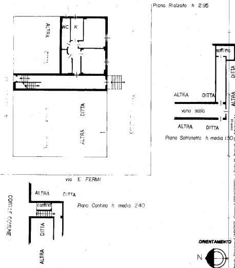
in comune di senago, via enrico fermi 17: appartamento ad uso abitazione posto al piano terreno, composto da due locali oltre servizi, con annessi vano di cantina al piano cantinato e vano di solaio al piano sottotetto, della superficie commerciale di17 mq, dotato di riscaldamento centralizzato
in comune di senago, via enrico fermi 17: appartamento ad uso abitazione posto al piano terreno, composto da due locali oltre servizi, con annessi vano di cantina al piano cantinato e vano di solaio al piano sottotetto, della superficie commerciale di17 mq, dotato di riscaldamento centralizzato
AFFARI ALL'ASTA è uno studio di consulenza che si occupa di aste immobiliari e saldo stralcio, dove il cliente viene seguito in tutto il percorso relativo all' acquisto tramite aste giudiziarie.
L' immobile viene venduto dal tribunale ed il prezzo indicato si riferisce all' offerta minima.
Contattaci per fissare un appuntamento per avere maggiori informazioni.
Per maggiori informazioni:
MILANO, VIA GIUSEPPE TARTINI, 12 (MI)
+39 3392588984
+39 3427176507

Per maggiori informazioni:
MILANO, VIA GIUSEPPE TARTINI, 12 (MI)
+39 3392588984
+39 3427176507
Caratteristiche principali
Codice
SDIC110
Città
Senago
Categoria
2 locali
Prezzo
64.500 €
Locali
2
Mq
74
Piano
Terra
Classe energetica
G
Stato Immobile
Buono
Grado
Medio
Posizione
Periferia
Panorama
Vista Aperta
Orientamento
Nord Ovest Sud Est
Giardino
Cortile
Arredi
Semi Arredato
Tipo Soggiorno
Sala da Pranzo
Tipo Cucina
A Vista
Riscaldamento
Centralizzato
Tipo Riscaldam.
Caldaia
Tipo Impianto
Radiatori
Fonte Energetica
Metano
Infissi
Alluminio
Serramenti
Buono
Persiana
Tapparella PVC
Pavim. Giorno
Gres Porcellanato
Pavim. Notte
Gres Porcellanato
Pavim. Cucina
Gres Porcellanato
Pavim. Bagno
Gres Porcellanato

Accessori: Porta Blindata, Ripostiglio

Mappa
Via Enrico Fermi 17, Senago (MI)
Condividi su
Cookie preference