Italiano
869.250 €

VILLA ALL'ASTA

4 o più locali in vendita • Mariano Comense - Via Emanuele D'Adda, 14
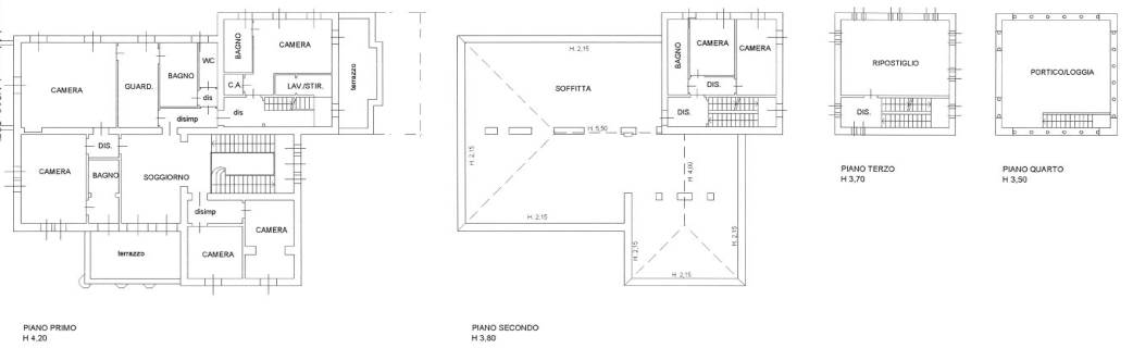
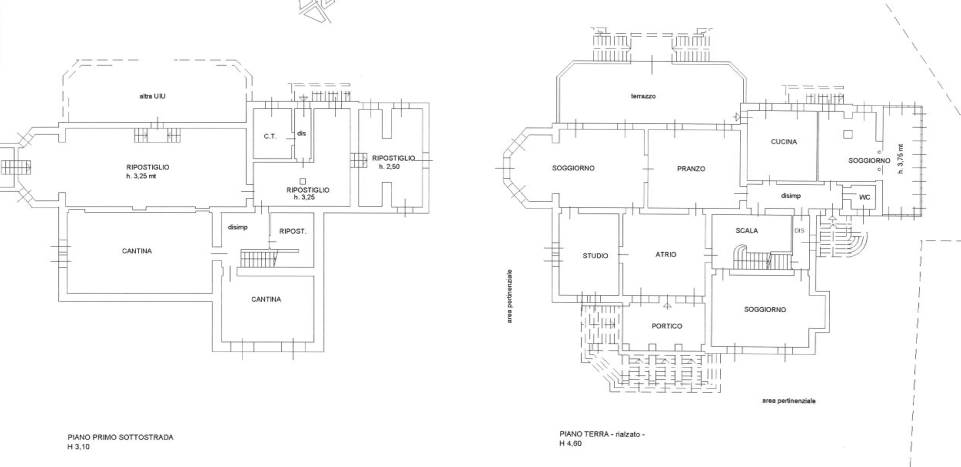
villa di 1.636 mqal piano terra, primo, secondo, terzo, quarto e sottostrada composta da atrio, 3 soggiorni, pranzo, studio,
cucina, 2 disimpegni, vano scala, bagno, portico, terrazzo e veranda al piano terra; soggiorno, 5 camere, guardaroba, 4 bagni, 4
disimpegni, cabina armadio, lavanderia, 2 vani scala, 3 terrazzi al piano primo; 2 camere, disimpegno, bagno, vano scala, soffitta
al piano secondo; ripostiglio e vano scala al piano terzo; portico/loggia e vano scala al piano quarto; 4 ripostigli, 3 cantine, 2
disimpegni, centrale termica, vano scala al piano sottostrada;
box e ripostiglio al piano seminterrato di 87 mq
AFFARI ALL'ASTA è uno studio di consulenza che si occupa di aste immobiliari e saldo stralcio, dove il cliente viene seguito in tutto il percorso relativo all' acquisto tramite aste giudiziarie.
L' immobile viene venduto dal tribunale ed il prezzo indicato si riferisce all' offerta minima.
Contattaci per fissare un appuntamento per avere maggiori informazioni.
Per maggiori informazioni:
MILANO, VIA GIUSEPPE TARTINI, 12 (MI)
+39 3392588984
+39 3427176507

Per maggiori informazioni:
MILANO, VIA GIUSEPPE TARTINI, 12 (MI)
+39 3392588984
+39 3427176507
Caratteristiche principali
Codice
SDIC109
Città
Mariano Comense
Categoria
4 o più locali
Prezzo
869.250 €
Locali
11
Bagni
5
Mq
1713
Box
1
Piano
Terra
Classe energetica
G
Stato Immobile
Buono
Grado
Medio
Posizione
Centro
Panorama
Vista Aperta
Orientamento
Nord Ovest Sud Est
Giardino
Cortile
Arredi
Semi Arredato
Tipo Soggiorno
Triplo
Tipo Cucina
A Vista
Riscaldamento
Autonomo
Tipo Riscaldam.
Caldaia
Tipo Impianto
Radiatori
Fonte Energetica
Metano
Infissi
Legno
Serramenti
Buono
Persiana
Tapparella PVC
Pavim. Giorno
Ceramica
Pavim. Notte
Ceramica
Pavim. Cucina
Ceramica
Pavim. Bagno
Ceramica

Accessori: Ripostiglio

Mappa
Via Emanuele D'Adda 14, Mariano Comense (CO)
Condividi su
Cookie preference