Italiano
99.238 €

BILOCALE ALL'ASTA

2 locali in vendita • Villa Cortese - Via Olcella, 5
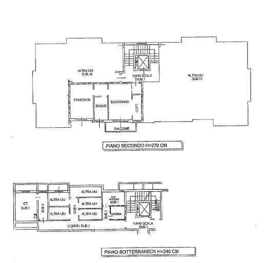
Appartamento a Villa Cortese in Via Olcella, 5, della superficie commerciale di 53 mq, posto al secondo piano di un complesso condominiale e sono annessi cantina e box al piano sotterraneo e un posto auto coperto. Composto da due locali con servizi
Appartamento a Villa Cortese in Via Olcella, 5, della superficie commerciale di 53 mq, posto al secondo piano di un complesso condominiale e sono annessi cantina e box al piano sotterraneo e un posto auto coperto. Composto da due locali con servizi
AFFARI ALL'ASTA è uno studio di consulenza che si occupa di aste immobiliari e saldo stralcio, dove il cliente viene seguito in tutto il percorso relativo all' acquisto tramite aste giudiziarie.
L' immobile viene venduto dal tribunale ed il prezzo indicato si riferisce all' offerta minima.
Contattaci per fissare un appuntamento per avere maggiori informazioni.
Per maggiori informazioni:
MILANO, VIA GIUSEPPE TARTINI, 12 (MI)
+39 3392588984
+39 3427176507

Per maggiori informazioni:
MILANO, VIA GIUSEPPE TARTINI, 12 (MI)
+39 3392588984
+39 3427176507
Caratteristiche principali
Codice
SDC15
Città
Villa Cortese
Categoria
2 locali
Prezzo
99.238 €
Locali
2
Mq
53
Box
1
Posti auto
1
Piano
2
Classe energetica
G
Stato Immobile
Buono
Grado
Medio
Posizione
Periferia
Panorama
Vista Aperta
Orientamento
Nord Ovest Sud Est
Giardino
Cortile
Arredi
Semi Arredato
Tipo Soggiorno
Sala da Pranzo
Tipo Cucina
A Vista
Riscaldamento
Centralizzato
Tipo Riscaldam.
Caldaia
Tipo Impianto
Radiatori
Fonte Energetica
Metano
Infissi
Legno Doppio Vetro
Serramenti
Buono
Persiana
Tapparella PVC
Pavim. Giorno
Ceramica
Pavim. Notte
Ceramica
Pavim. Cucina
Ceramica
Pavim. Bagno
Ceramica

Accessori: Ascensore, Porta Blindata

Mappa
Via Olcella 5, Villa Cortese (MI)
Condividi su
Cookie preference