Italiano
912.750 €

EDIFICIO ALL'ASTA

Stabile / Palazzo in vendita • Bareggio - Via torino, 14
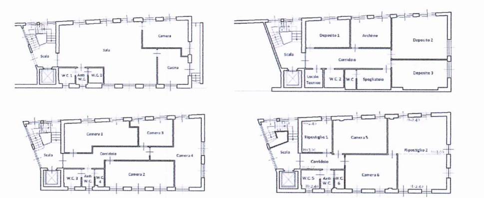
VIA TORINO 14 - intera piena proprietà di edificio cielo-terra con area cortilizia pertinenziale, composto da tre piani fuori terra ed un piano seminterrato. Il fabbricato è attualmente adibito a Residenza per Anziani.
VIA TORINO 14 - intera piena proprietà di edificio cielo-terra con area cortilizia pertinenziale, composto da tre piani fuori terra ed un piano seminterrato. Il fabbricato è attualmente adibito a Residenza per Anziani.
AFFARI ALL'ASTA è uno studio di consulenza che si occupa di aste immobiliari e saldo stralcio, dove il cliente viene seguito in tutto il percorso relativo all' acquisto tramite aste giudiziarie.
L' immobile viene venduto dal tribunale ed il prezzo indicato si riferisce all' offerta minima.
Contattaci per fissare un appuntamento per avere maggiori informazioni.
Per maggiori informazioni:
MILANO, VIA GIUSEPPE TARTINI, 12 (MI)
+39 3392588984
+39 3427176507

Per maggiori informazioni:
MILANO, VIA GIUSEPPE TARTINI, 12 (MI)
+39 3392588984
+39 3427176507
Caratteristiche principali
Codice
SAPR76
Città
Bareggio
Categoria
Stabile / Palazzo
Prezzo
912.750 €
Locali
6
Mq
590
Piano
Terra
Classe energetica
G
Stato Immobile
Buono
Grado
Medio
Posizione
Periferia
Panorama
Vista Aperta
Orientamento
Nord Ovest Sud Est
Giardino
Cortile
Riscaldamento
Autonomo
Tipo Riscaldam.
Caldaia
Tipo Impianto
Radiatori
Fonte Energetica
Metano
Infissi
Alluminio Doppio Vetro
Serramenti
Buono
Pavim. Giorno
Ceramica
Pavim. Notte
Ceramica
Pavim. Cucina
Ceramica
Pavim. Bagno
Ceramica

Accessori: Ascensore, Portineria/Custode

Mappa
Via torino 14, Bareggio (MI)
Condividi su
Cookie preference