Italiano
204.050 €

TRILOCALE ALL'ASTA

3 locali in vendita • Peschiera Borromeo - Via Martiri di Cefalonia, SNC
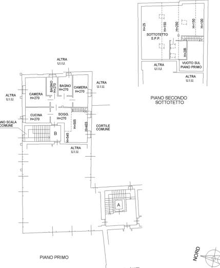
Appartamento al p1-p2 composto n. 3 locali, cucina, n. 2 bagni al p1 e locale al p2 sottotetto, oltre box 15 mq al piano s1, sito in Peschiera Borromeo alla Via Martiri di Cefalonia Snc
Appartamento al p1-p2 composto n. 3 locali, cucina, n. 2 bagni al p1 e locale al p2 sottotetto, oltre box 15 mq al piano s1, sito in Peschiera Borromeo alla Via Martiri di Cefalonia Snc
AFFARI ALL'ASTA è uno studio di consulenza che si occupa di aste immobiliari e saldo stralcio, dove il cliente viene seguito in tutto il percorso relativo all' acquisto tramite aste giudiziarie.
L' immobile viene venduto dal tribunale ed il prezzo indicato si riferisce all' offerta minima.
Contattaci per fissare un appuntamento per avere maggiori informazioni.
Per maggiori informazioni:
MILANO, VIA GIUSEPPE TARTINI, 12 (MI)
+39 3392588984
+39 3427176507

Per maggiori informazioni:
MILANO, VIA GIUSEPPE TARTINI, 12 (MI)
+39 3392588984
+39 3427176507
Caratteristiche principali
Codice
SAPR72
Città
Peschiera Borromeo
Categoria
3 locali
Prezzo
204.050 €
Locali
3
Bagni
2
Mq
167
Box
1
Piano
1
Classe energetica
G
Stato Immobile
Buono
Grado
Medio
Posizione
Periferia
Panorama
Vista Aperta
Orientamento
Nord Ovest Sud Est
Giardino
Cortile
Arredi
Non Arredato
Tipo Soggiorno
Sala da Pranzo
Tipo Cucina
A Vista
Riscaldamento
Centralizzato
Tipo Riscaldam.
Caldaia
Tipo Impianto
Pavimento
Fonte Energetica
Metano
Infissi
Legno Doppio Vetro
Serramenti
Buono
Persiana
Persiana Legno
Pavim. Giorno
Ceramica
Pavim. Notte
Ceramica
Pavim. Cucina
Ceramica
Pavim. Bagno
Ceramica

Accessori: Ascensore, Porta Blindata

Mappa
Via Martiri di Cefalonia SNC, Peschiera Borromeo (MI)
Condividi su
Cookie preference