Italiano
55.500 €

TRILOCALE ALL'ASTA

3 locali in vendita • Trecate - Via monsignor guido tonetti, 6/8
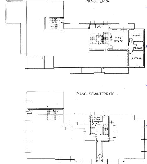
Piena proprietà di 1000/1000, in fabbricato condominiale denominato Condominio Il Campo A di appartamento posto al piano terra/rialzato (1 f.t.), raggiungibile direttamente dall’atrio condominiale, composto da: ingresso su soggiorno con angolo cottura, disimpegno, camera, bagno ed altra camera matrimoniale, oltre ad un balcone esterno al piano terra/rialzato, e cantina di pertinenza posta al piano seminterrato.
AFFARI ALL'ASTA è uno studio di consulenza che si occupa di aste immobiliari e saldo stralcio, dove il cliente viene seguito in tutto il percorso relativo all' acquisto tramite aste giudiziarie.
L' immobile viene venduto dal tribunale ed il prezzo indicato si riferisce all' offerta minima.
Contattaci per fissare un appuntamento per avere maggiori informazioni.
Per maggiori informazioni:
MILANO, VIA GIUSEPPE TARTINI, 12 (MI)
+39 3392588984
+39 3427176507

Per maggiori informazioni:
MILANO, VIA GIUSEPPE TARTINI, 12 (MI)
+39 3392588984
+39 3427176507


Caratteristiche principali
Codice
SAPR163
Città
Trecate
Categoria
3 locali
Prezzo
55.500 €
Locali
3
Bagni
1
Mq
68
Box
1
Piano
Terra
Classe energetica
G
Stato Immobile
Buono
Grado
Medio
Posizione
Periferia
Panorama
Vista Aperta
Orientamento
Nord Ovest Sud Est
Giardino
Cortile
Arredi
Semi Arredato
Tipo Soggiorno
Sala da Pranzo
Tipo Cucina
A Vista
Riscaldamento
Autonomo
Tipo Riscaldam.
Caldaia
Tipo Impianto
Radiatori
Fonte Energetica
Metano
Infissi
Legno
Serramenti
Buono
Persiana
Persiana Legno
Pavim. Giorno
Ceramica
Pavim. Notte
Ceramica
Pavim. Cucina
Ceramica
Pavim. Bagno
Ceramica

Accessori: Aria Condizionata, Ascensore, Porta Blindata, Video Citofono

Mappa
Via monsignor guido tonetti 6/8, Trecate (NO)
Condividi su
Cookie preference