Italiano
69.600 €

TRILOCALE ALL'ASTA

3 locali in vendita • Varese - Via E. Trentini , 30
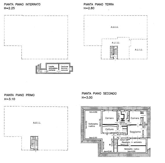
trattasi di una unità immobiliare ad uso residenziale (attualmente utilizzata come ufficio) inserita al secondo piano, con accesso indipendente dal piano terra, di un fabbricato a destinazione mista, composta da tre locali con doppi servizi ed autorimessa
trattasi di una unità immobiliare ad uso residenziale (attualmente utilizzata come ufficio) inserita al secondo piano, con accesso indipendente dal piano terra, di un fabbricato a destinazione mista, composta da tre locali con doppi servizi ed autorimessa
AFFARI ALL'ASTA è uno studio di consulenza che si occupa di aste immobiliari e saldo stralcio, dove il cliente viene seguito in tutto il percorso relativo all' acquisto tramite aste giudiziarie.
L' immobile viene venduto dal tribunale ed il prezzo indicato si riferisce all' offerta minima.
Contattaci per fissare un appuntamento per avere maggiori informazioni.
Per maggiori informazioni:
MILANO, VIA GIUSEPPE TARTINI, 12 (MI)
+39 3392588984
+39 3427176507

Per maggiori informazioni:
MILANO, VIA GIUSEPPE TARTINI, 12 (MI)
+39 3392588984
+39 3427176507



Caratteristiche principali
Codice
SAG198
Città
Varese
Categoria
3 locali
Prezzo
69.600 €
Locali
3
Mq
114
Box
1
Piano
2
Classe energetica
G
Stato Immobile
Buono
Grado
Medio
Posizione
Periferia
Panorama
Vista Aperta
Orientamento
Nord Ovest Sud Est
Giardino
Cortile
Arredi
Semi Arredato
Tipo Soggiorno
Sala da Pranzo
Tipo Cucina
A Vista
Riscaldamento
Centralizzato
Tipo Riscaldam.
Caldaia
Tipo Impianto
Radiatori
Fonte Energetica
Metano
Infissi
Legno Doppio Vetro
Serramenti
Buono
Persiana
Persiana Legno
Pavim. Giorno
Ceramica
Pavim. Notte
Ceramica
Pavim. Cucina
Ceramica
Pavim. Bagno
Ceramica

Accessori: Ripostiglio

Mappa
Via E. Trentini 30, Varese (VA)
Condividi su
Cookie preference